Abstract
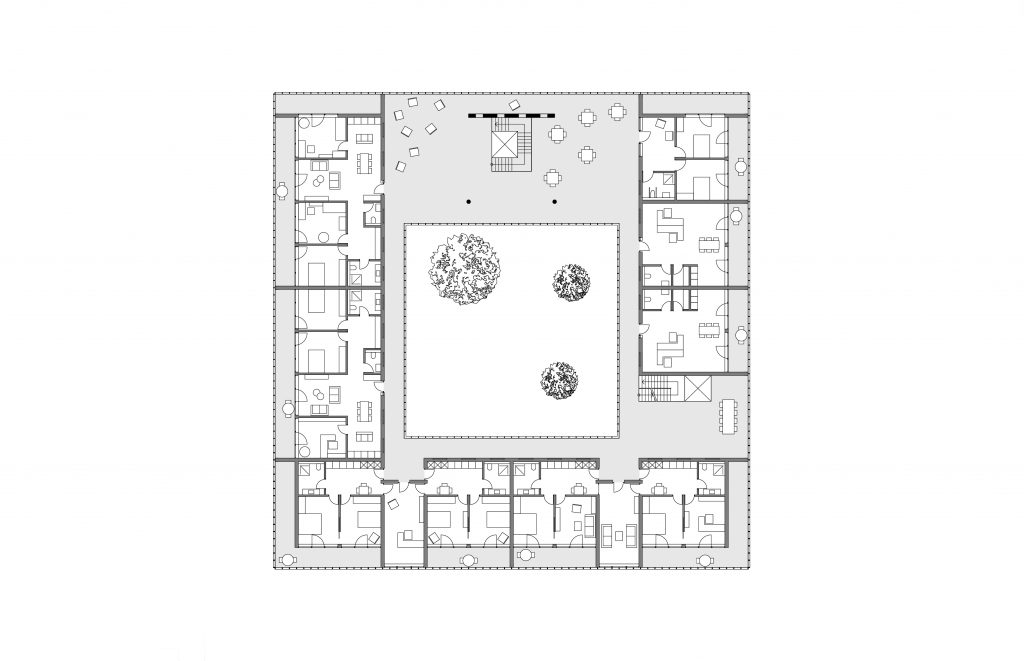
In der kleinen rheinhessischen Gemeinde Heidenfahrt soll im Sinne einer Verdichtung nach Innen noch landwirtschaftlich genutzte Fläche für ein gemeinschaftliches und generationsübergreifendes Wohnkonzept genutzt werden. Zudem sollen gemeinschaftliche Einrichtungen einen zusätzlichen Mehrwert für die Gemeinde schaffen. Die ebene Fläche von 50 x 45 m befindet sich im Ortskern und soll den städtebaulichen Kontext aus einer überwiegend zwei- bis dreigeschossigen Solitärstruktur (Einfamilienhäuser) aufgreifen. Entwickelt wurde ein Baukörper, der die starke Orientierung nach innen behält und gleichzeitig auf die städtebaulichen Kanten von Heidenfahrt reagiert – ein quadratischer Rahmen, der einen Innenhof umschließt. Das Gebäude ist offen gestaltet, dabei gibt ihm die vertikale Fassade aus Holz eine räumliche Hülle und vermittelt Ruhe und Klarheit. Der Blickwinkel entscheidet, ob das Gebäude geschlossener oder transparenter wirkt. Aufenthaltscharakter und Begegnungsfläche schafft ein heller, begrünter Innenhof. Er bildet die Brücke zwischen dem öffentlichen und dem halböffentlichen Raum des Quartiers. Die Geschossdecken ragen beidseitig aus dem Baukörper heraus und ergeben so private Balkonzonen nach außen und einen gemeinschaftlichen Laubengang für Erschließung und Kommunikation nach innen. Gemeinschaftliche Einrichtungen wie Café, Kita und Verwaltung befinden sich barrierefrei im Erdgeschoss. Alle Wohnungen sind nach Süden und Westen orientiert. Die Homeoffice-Einheiten und die Gästezimmer befinden sich an der Ostseite. Der Entwurf besteht aus in Holz horizontal geschaltem Beton im Erdgeschoss und Holzbauweise in den oberen Geschossen.















Projektdaten
Ort | Heidenfahrt, Rheinland Pfalz
Leistung | Entwurf
Jahr | 2016
Materialität
Holzbau | Brettsperrholz
Beteiligte
Betreuer | Prof. Dr. Julius Niederwöhrmeier











