Abstract
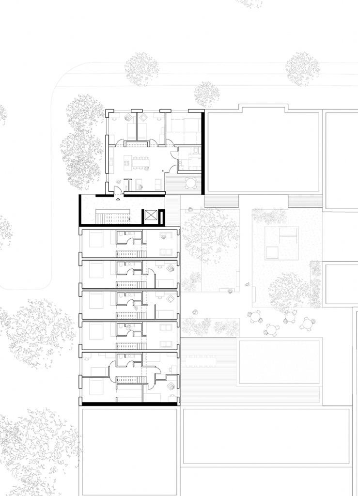
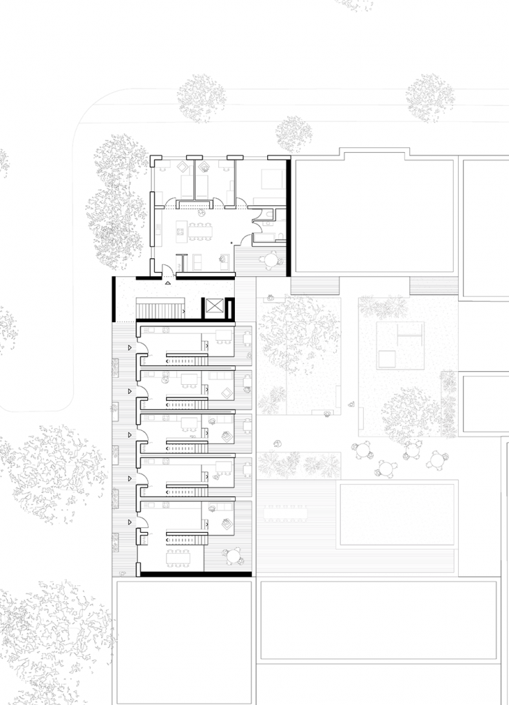
Die Masterthesis „STRATEGISCH GRÜN – Die Berücksichtigung der Primärkonstruktion im nachhaltigen Geschosswohnungsbau“ beschäftigt sich mit der Frage, wie durch die Auswahl möglichst klimafreundlicher Baustoffe in der Primärkonstruktion Energieverbräuche weiter reduziert werden können. Im Fokus stehen hierbei entsprechende Kriterien und Wirkungskategorien, die bei der Auswahl nachhaltiger, klimagerechter Baumaterialien unterstützen. Wie viele Regulierungen und Abkommen zum Klimaschutz greifen auch die bisherigen Bestrebungen zum klimafreundlichen Bauen häufig zu kurz. Ein innovatives Wohnkonzept beruht vielmehr auf einem Baukörper, der bereits aufgrund seiner Primärkonstruktion und Materialwahl möglichst nachhaltig ist. In dieser Arbeit sollte deshalb aufgezeigt werden, wie klimaschonende Baukörper nicht nur die aktuell gültigen Referenzwerte der Nutzungsphase einhalten können, sondern wie nachhaltige Architektur darüber hinaus die Energieaufwände und Emissionen für Herstellung und Nachnutzung möglichst gering halten kann. Ein Schwerpunkt wurde hierbei auf die Optimierungspotenziale der Baustoffe in der Primärkonstruktion gelegt. Dafür wurden folgende Kriterien und Wirkungskategorien als relevant für die Auswahl nachhaltiger, klimagerechter Baustoffe identifiziert: Rezyklierbarkeit & Kreislauffähigkeit, Langlebigkeit, graue Energie, Treibhauspotenzial, natürliche Rohstoffe und Transport. Sie dienen als Richtschnur für die Entwicklung eines „strategisch grünen“ Entwurfkonzepts. Anhand der erarbeiteten Bewertungsgrundlage wurden drei Fallbeispiele analysiert, während die daraus resultierenden Erkenntnisse in eine eigene Fallstudie – einem Geschosswohnungsbau in der Mainzer Neustadt – eingeflossen sind. Der innerstädtische Wohnbau wurde als „strategisch grüner“ Baukörper entworfen, der den sechs herausgearbeiteten Kriterien Rechnung trägt.











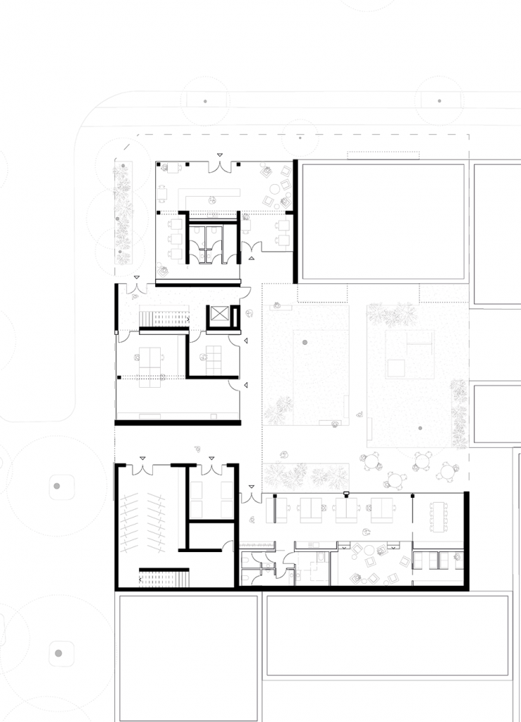
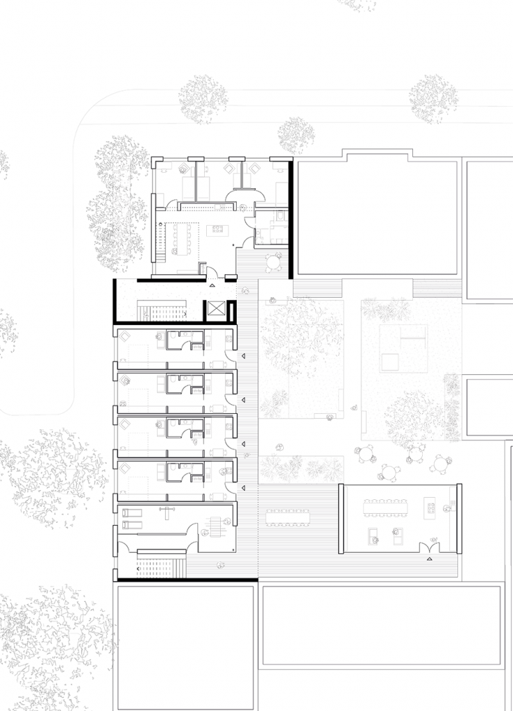
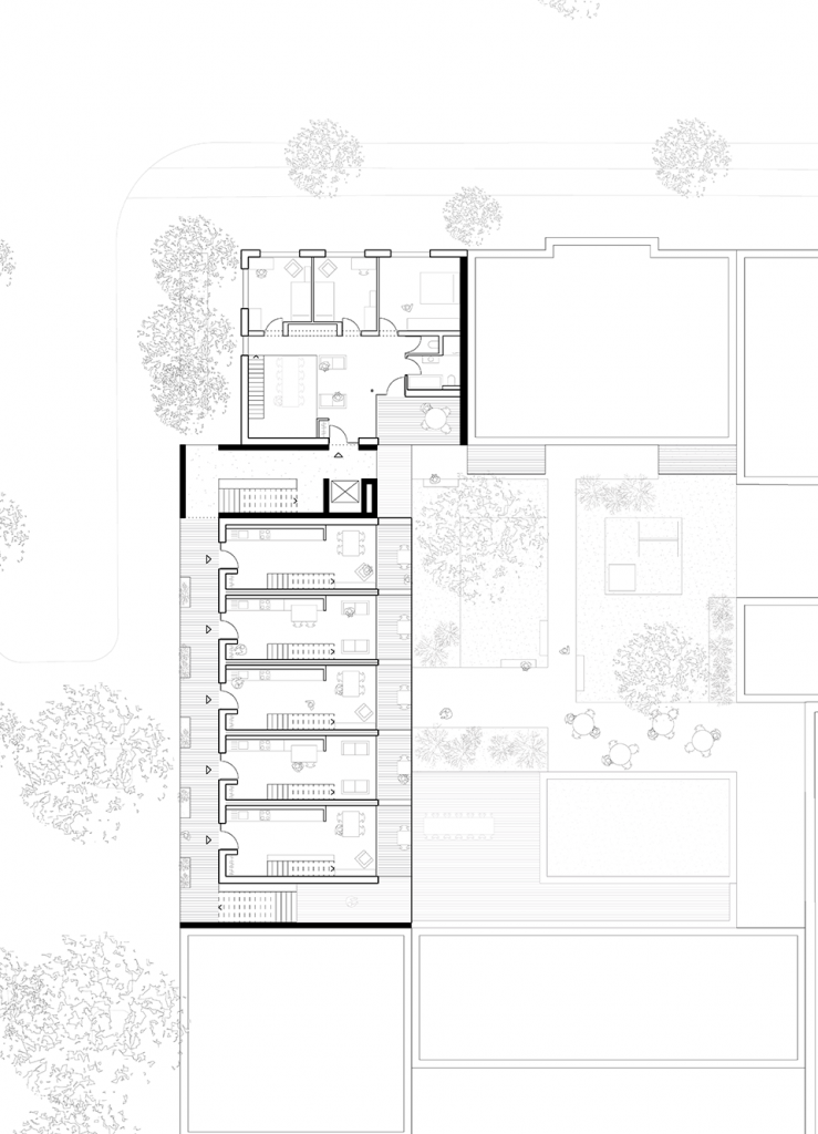
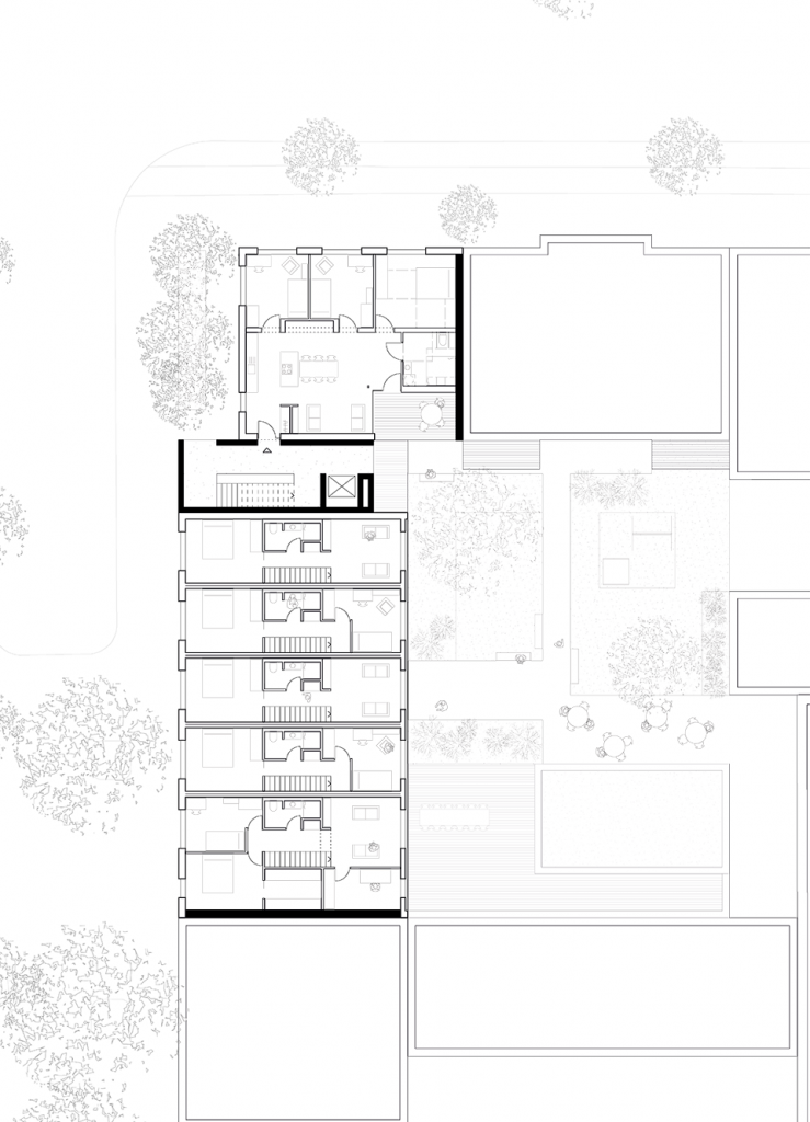
Projektdaten
Ort | Boppstraße, Mainz, Rheinland Pfalz
Leistung | Wissenschaftliche Arbeit und Entwurf, Masterthesis
Jahr | 2020
Materialität
Holzbau| Brettsperrholz,
rezyklierter Beton
Beteiligte
Betreuer | Prof. Michael Spies, Prof. Dr. Julius Niederwöhrmeier












