Abstract
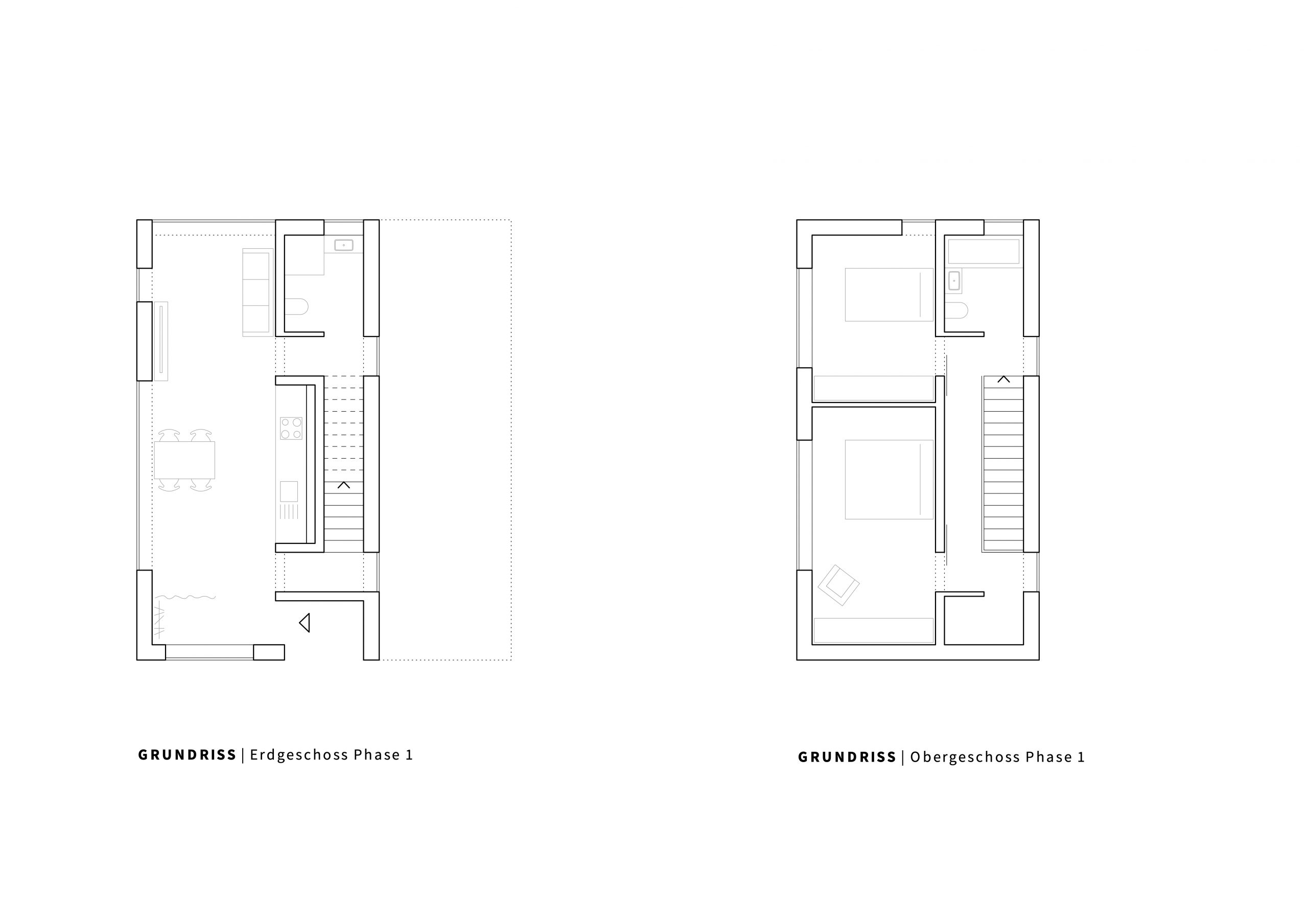
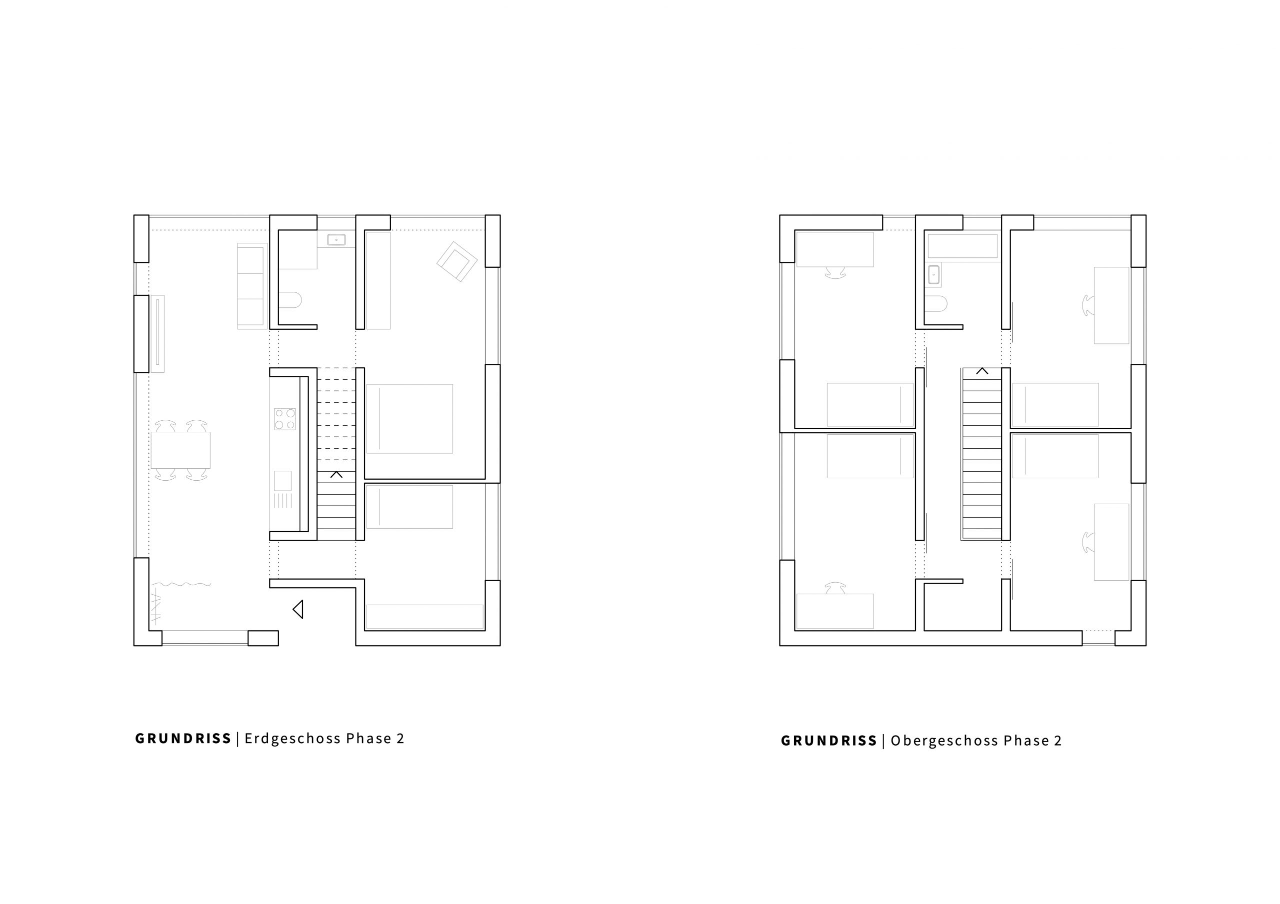
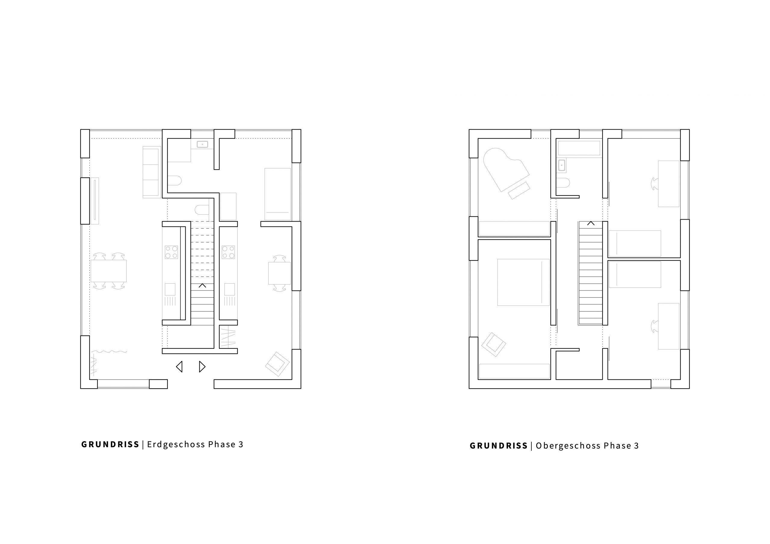
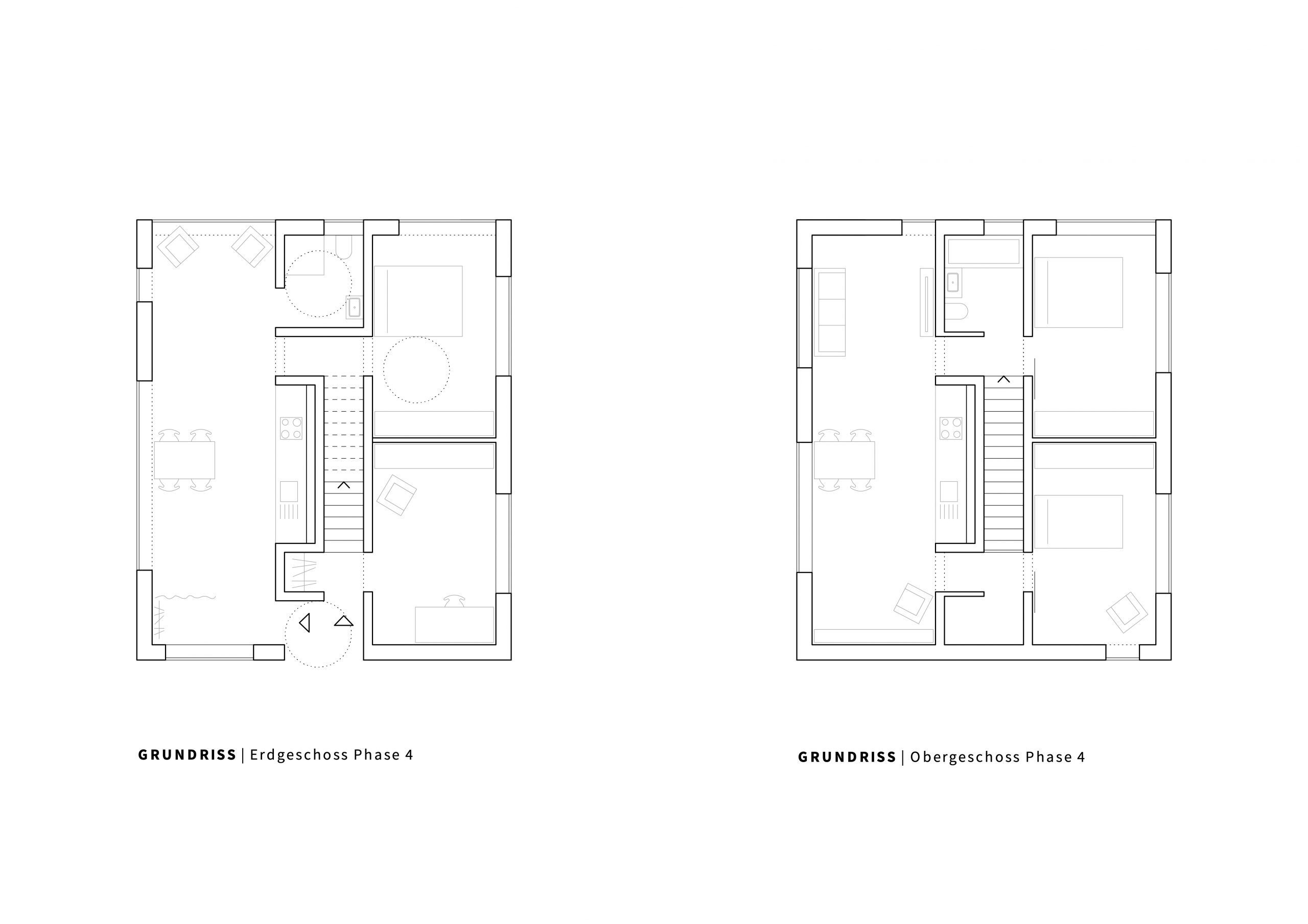
Der durchschnittliche Lebenszyklus eines konventionellen Einfamilienhauses sorgt vor allem in den ländlichen Regionen für große Probleme: Ein junges, alleinstehendes Paar baut für sich und seine Kinder ein Eigenheim, die Kinder werden erwachsen und ziehen aus. Nach dem Auszug der Kinder verfügen die Eltern über eine große Wohnfläche, die sie nach einiger Zeit auf Grund ihres Alters nicht mehr bewirtschaften können und ein Großteil des Hauses steht leer. Das Wachsmalhaus passt sich unterschiedlichen Lebenssituationen an und kann je nach Bedarf an- und umgebaut werden. Dies ermöglicht eine hohe Flexibilität der einzelnen Ausbauphasen und der damit zusammenhängenden Finanzierung, die somit schrittweise erfolgen kann. Als Ausgangssituation für den Entwurf dient das ortstypische Hunsrückhaus, das sich durch die Teilung von Wohngebäude und Scheune auszeichnet. Ein gemeinsames Dach erstreckt sich über beide Nutzungen und schafft so ein gesamtheitliches Bild. Das Startermodul des Familienhauses ist diesem Prinzip nachempfunden und ermöglicht durch die vorgehängte Holzfassade flexible und elastische Anbaumöglichkeiten.









Projektdaten
Ort | Hunsrück, Rheinland-Pfalz
Leistung | Entwurf, Konzept
Jahr | 2019
Materialität
Holzbau | Brettsperrholz
Beteiligte
Betreuer | Prof. Dr. Julius Niederwöhrmeier
Team | Hannes Sauter, Louis Schmitt, Carmen Sohn, Florian Müller















