Abstract
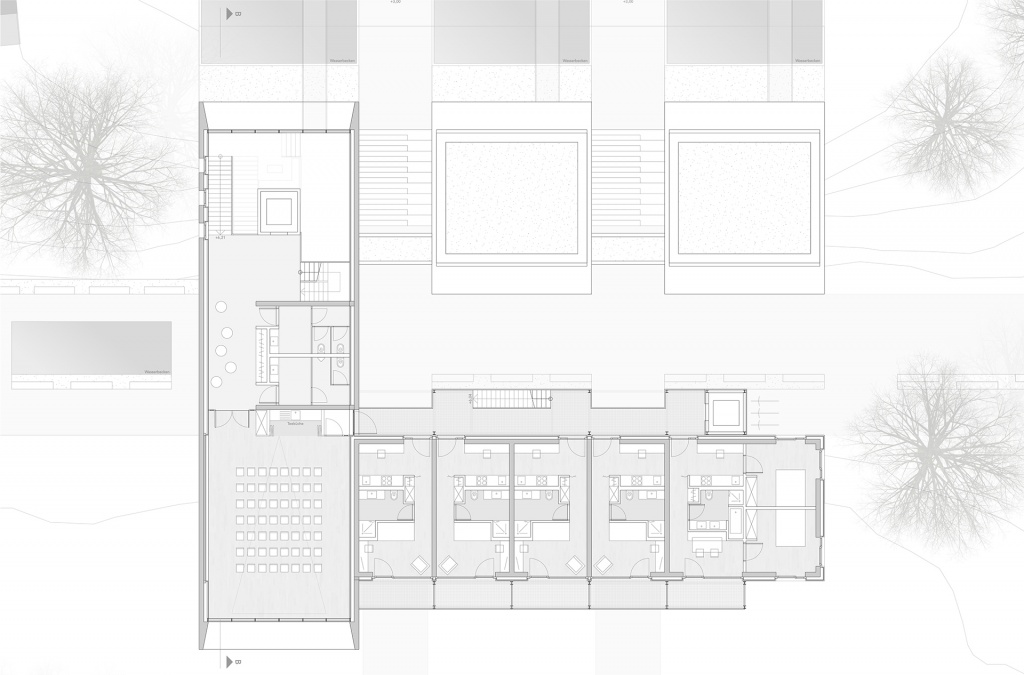
Im luxemburgischen Schengen, der Geburtsstätte eines offenen Europas, soll ein Begegnungszentrum entstehen. Dieses soll ein Ort des gemeinschaftlichen Diskurses über die Zukunft Europas beherbergen und eine Atmosphäre des Miteinanders vermitteln – ein Haus für Europa. Das Projekt berücksichtigt die Symbolkraft des Dreiländerecks und greift in der Ausgestaltung den historischen Kontext auf. Ein offener Treffpunkt Vieler: Durch eine umfangreiche Durchwegung greift der Entwurf metaphorisch die Willkommenskultur eines offenen Europas auf. Im Mittelpunkt steht ein kommunikativer Platz, der als Orientierungselement und Erschließungsraum für mehrere Baukörper dient. Öffentlich und halböffentlich genutzte Räume sind in Sichtbeton erstellt und zeigen durch ihre Materialität Stärke und Langlebigkeit. Weit auskragende Vordächer schaffen einen Bezug zur Umgebung und bekräftigen die Geste des Empfangens. Der Appartementbaukörper hebt sich materiell ab und wird durch das Gestaltungsmerkmal Stahl in Laubengängen, Balkonen und Verbindungsbrücken mit dem Gebäudekomplex verbunden. Die Ausrichtung des Veranstaltungsraums eröffnet symbolisch die Blickrichtung ins Dreiländereck.
















Projektdaten
Ort | Schengen, Luxemburg
Leistung | Entwurf, Bachelorarbeit
Jahr | 2018
Materialität
Massivbau | Beton, Mauerwerk
Beteiligte
Betreuer | Prof. Michael Spies
















