Abstract
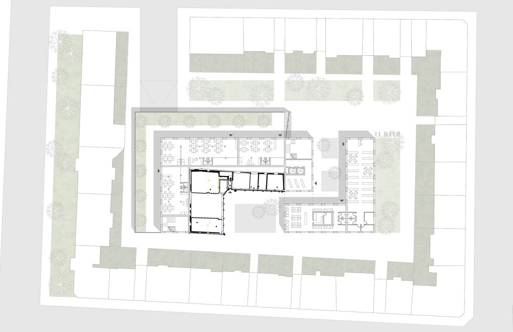
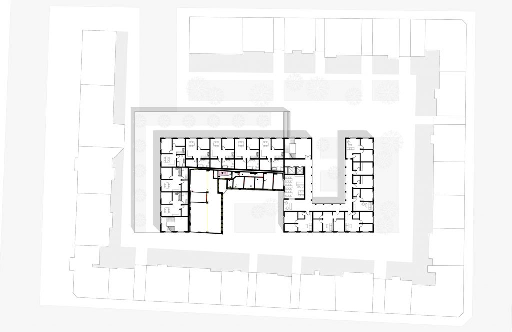
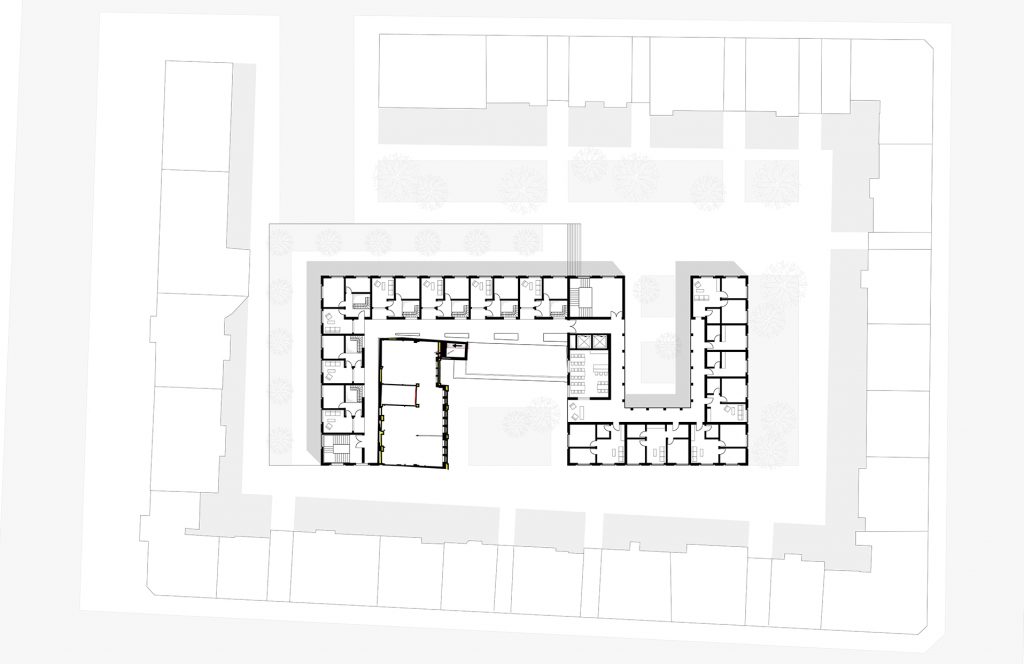
Deutschen Metropolen fehlt Wohnraum und die Bekämpfung des „Platzproblems“ wird in vielen deutschen Städten zur Herausforderung. Dies zeigt sich auch in der rheinland-pfälzischen Landeshauptstadt Mainz. Die Verteuerung des Wohnens beschleunigt weiter Phänomene der Gentrifizierung und verändert damit zugleich den Charakter dieser Wohnquartiere, ihre ursprüngliche soziale Durchmischung und ihre spezifischen Atmosphären. Maßnahmen der Innenentwicklung bzw. Nachverdichtung erschließen bislang mindergenutzte Blockinnenbereiche zentrumsnaher Wohnquartiere und schaffen Potenziale für neue Wohnformen. An diesen Orten sind häufig Überreste ehemaliger Industriegebäude oder kleinteilige Bebauung unterschiedlichster Nutzungen vorzufinden. Zudem ist ein Großteil der damit verbundenen Flächen versiegelt. Für die Boppstraße 42 in der Mainzer Neustadt und die dortige Blockrandbebauung sollte ein exemplarischer Lösungsansatz entwickelt werden. Das historische Gebäude des Ollohofs galt es in dieses Konzept zu integrieren. Für die Mainzer Neustadt wurde daraufhin ein blockübergreifendes Konzept erarbeitet: Die vorhandenen Blockränder sollen bereinigt werden und die Nutzungen in einen neuen Baukörper umgesiedelt werden. Denn es stellte sich heraus, dass die Flächen innerhalb der Blockrandbebauung durch einen einzigen prägnanten Baukörper am besten genutzt werden können, bei gleichzeitiger Steigerung der Wohnqualität. Der Entwurf lässt zudem die Entsiegelung von Freiflächen zu und es entsteht zusätzlicher Grünraum. Durch die Bündelung der unterschiedlichen Nutzungen in den einzelnen „Hotspots“ ergibt sich ein quartierübergreifendes Netzwerk aus Funktionen, welche als Anzugspunkt für die gesamte Mainzer Neustadt fungieren und einen Austausch sowie die Interaktion miteinander fördern. Das breite Spektrum an Nutzungen bildet ein Mehrwert für die Nachbarschaft und das soziale Miteinander und fördern zudem die Durchmischung.











Projektdaten
Ort | Ollohof Mainz, Rheinland-Pfalz
Leistung | Entwurf, Konzept
Jahr | 2019
Materialität
Massivbau | Mauerwerk
Beteiligte
Betreuer | Prof. Michael Spies
Team | Carmen Sohn, Florian Müller

















